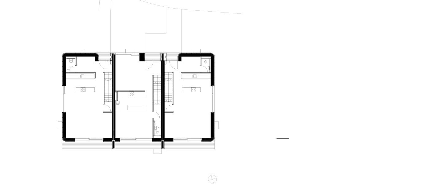
Dreispänner
Massiv ausgeführtes Grundgeschoß mit jeweils zwei Stockwerken in vorgefertigter Holzrahmenbauweise – Fassaden mit Fichtenschindeln.
| Architektur | Hermann Kaufmann und Partner ZT GmbH, Schwarzach |
| Bauherr | B&O Gruppe |
| Bauzeit | 2021 – 2022 |
| Typologie | Zwei identische, dreigeschossige Holzbauten, je 3 Wohneinheiten, geschindelt, Flachdach |
| Flächeneffizienz | Typ A-Rand-Reihenhaus: 56,22 %, 75 % (ohne Keller) Typ B-Mitte-Reihenhaus: 71,1 % (ohne Keller) |
| Bruttogrundfläche | Typ A-Rand-Reihenhaus: 327 m² Typ B-Mitte-Reihenhaus: 315 m² |
| Wohnfläche | Typ A-Rand-Reihenhaus: 183,84 m² Typ B-Mitte-Reihenhaus: 167,95 m² |
| Raumhöhe | 3,16 m |
| Brutto-Rauminhalt | Typ A-Rand-Reihenhaus: 1.274 m² Typ B-Rand-Reihenhaus: 1.274 m² |
Dreispänner-Stadtvillen im Modellprojekt „City of Wood“
2013 entstanden im Rahmen des Modellprojekts „City of Wood“ kompakte Reihenhausanlagen von HK Architekten (Hermann Kaufmann + Partner). Jede Einheit umfasst drei großzügige, dreigeschossige Wohnungen mit Südorientierung zum Park mit altem Baumbestand und kleinem Teich.
Von den ursprünglich drei geplanten Varianten wurde Prototyp A als Zwillingspaar umgesetzt. Die beiden massiven Erdgeschosse tragen zwei weitere Geschosse in vorgefertigter Holzrahmenbauweise. Sichtbare Decken aus Brettsperrholz prägen das Innere.
Die abgerundeten Fassaden erhielten eine Verkleidung aus Fichtenschindeln. Konzipiert als Effizienzhäuser 55, sind die Stadtvillen an das zentrale Nahwärmesystem des Quartiers angeschlossen und verbinden kompakte Bauweise mit hohem energetischen Standard.
| Konstruktion | Hybridbauweise Holz-Beton-Ziegel, Massivbauweise mit Ziegel im Erdgeschoss, Ständerbauweise in den Obergeschossen |
| Decke | Stahlbeton Filigrandecken Keller und EG, d=44 cm; Brettsperrholz, Sichtqualität, d=45 cm |
| Außenwand | EG: Ziegel Poroton mit Perlitfüllung, Kalkputz, d=36,5 cm OG: Holzrahmen mit Zellulosedämmung, Holzschindeln Innenputz: Kalkputz |
| Innenwand | Trockenbauweise |
| Ausstattung | Loggia, Terrassen, Keller, Dachbegrünung |
| Energieversorgung | Im KG Heizkörper, OG Fußbodenheizung mit Raumthermostaten; Dezentrale Abluftanlage mit bedarfsgesteuerten Einzelraumlüftern in Bädern, Zuluft über Fensterfalzlüfter (Regel-Air); Anschluss an Nahwärmenetz |
| Energetischer Standard | KfW 55 |
| Endenergiebedarf (kWh/(m²a)) | West: 50,4 Mitte: 45,6 Ost: 51,5 |
| Primärenergiebedarf (kWh/(m²a)) | West: 18,1 Mitte: 16,6 Ost: 18,5 |
| CO₂-Emission Betrieb (kg CO₂-Äq. /m²a) | West: 2,9 Mitte: 2,7 Ost: 2,9 |
Weitere Referenzen zu Bauen mit Holz:
Bauen mit Holz
Holz 4
Bauen mit Holz
Bürogebäude
Bestandsnutzung und Erweiterung
DFI Gebäude (354)
Bauen mit Holz
Chalet
Einfach Bauen
Forschungshaus 1
Einfach Bauen
Forschungshaus 2
Einfach Bauen
Forschungshaus 3
Einfach Bauen
Forschungshaus 4
Einfach Bauen
Forschungshaus 5
Bauen mit Holz
Holz 3
Bauen mit Holz
Holz 8
Bauen mit Holz
Holzparkdeck
Bauen mit Holz
Holzpavillon
Bauen mit Holz
WOGENO
Bestandsnutzung und Erweiterung
B&O Parkhotel (356, 358-362)
Bestandsnutzung und Erweiterung
Peissnhof
Bestandsnutzung und Erweiterung
Bestand (316)
Energieversorgung
Heizwerk
Energieversorgung
Heizikone
Bestandsnutzung und Erweiterung
Bestand (353)
Bauen mit Holz
Holz 2
Energieversorgung
Solar Decathlon
Bauen mit Holz
Dreispänner
Erweiterung und Nachverdichtung
Sternenbrücke
Erweiterung und Nachverdichtung
Deutsches Fußballinternat Parkplatzüberbauung
Erweiterung und Nachverdichtung
Saal Cambridge