Holz 3
Das Modellprojekt „City of Wood“ erhielt den ersten Platz in der Kategorie Reihenhaus für nachhaltigen Holzbau.
| Architektur | Matteo Thun & Partners, Milano |
| Bauherr | B&O Gruppe |
| Bauzeit | 2013 |
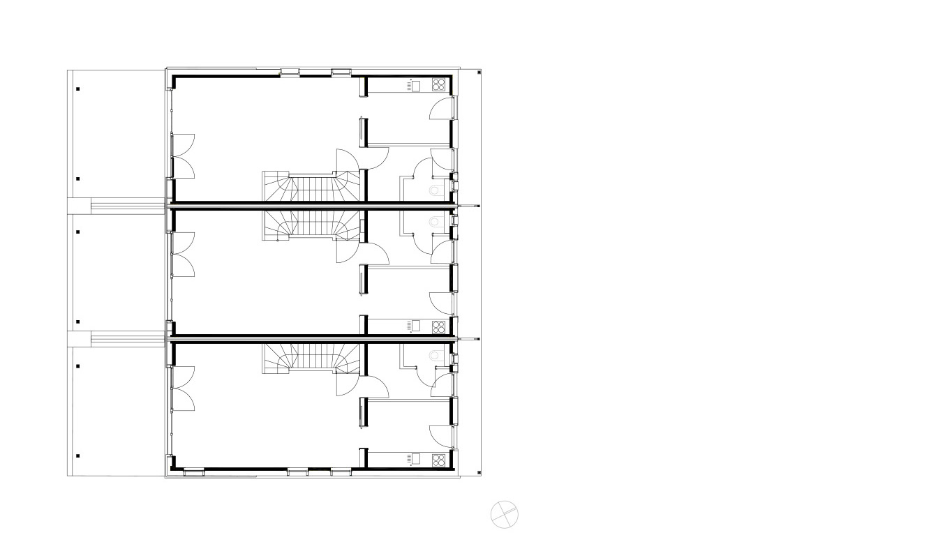
| Typologie | Reihenhäuser, 3 Wohnungen, 5 Zimmer |
| Flächeneffizienz | 77 % |
| Bruttogrundfläche | 568 m² |
| Wohnfläche | 435,2 |
| Raumhöhe | 2,77 m |
| Brutto-Rauminhalt | 1.617 m³ |
1 nach DIN 277, oberirdisch
2 nach WoFlV
Reihenhauskomplex in Holzbauweise – prämiertes Projekt aus dem Wettbewerb „City of Wood“
Im Rahmen des städtebaulichen Wettbewerbs „City of Wood“ 2011 wurde der Entwurf von Matteo Thun & Partners mit dem ersten Platz in der Kategorie Reihenhaus ausgezeichnet. In der Folge entstanden zwei Reihenhauskomplexe in Holzbauweise.
Die südseitige Fassadengestaltung wird durch großflächige Terrassen mit vorgelagerten Pergolen geprägt, die eine markante horizontale Gliederung erzeugen. Die Gebäude entsprechen dem Effizienzhausstandard 55 und sind an ein zentrales Nahwärmesystem angeschlossen.
| Konstruktion | Holzhybridbauweise; Massivbauweise mit tragenden Außen- und Innenwänden |
| Decke | Massive Brettsperrholzelemente, Trittschalldämmung; Dämmung, d=35,5 cm |
| Außenwand | Gipsplatten, Massivholzelement, Zellulosedämmstoff, Holzfassade (Brandfassade) |
| Innenwand | Holzmassivwand 80, Holzständerwand 60/100, Mineralwolldämmung |
| Ausstattung | Vorgefertigte Badzellen |
| Energieversorgung | Anschluss an Nahwärmenetz; Fußbodenheizung |
| Energetischer Standard | KfW 55 (EnEV 2009) |
| Endenergiebedarf (kWh/(m²a)) | 8b: 48,1 8c: 53,9 8a: 53,9 |
| Primärenergiebedarf (kWh/(m²a)) | 8b: 11,5 8c: 12,3 8a: 12,3 |
| CO₂-Emission Betrieb (kg CO₂-Äq. /m²a) | 8b: 4,1 8c: 4,5 8a: 4,5 |
| Besonderheiten | • Matteo Thun war mit den Containern nicht einverstanden, Brandfassade |
Weitere Referenzen zu Bauen mit Holz:
Projekte
Bauen mit Holz
Holz 4
Bauen mit Holz
Bürogebäude
Bestandsnutzung und Erweiterung
DFI Gebäude (354)
Bauen mit Holz
Chalet
Einfach Bauen
Forschungshaus 1
Einfach Bauen
Forschungshaus 2
Einfach Bauen
Forschungshaus 3
Einfach Bauen
Forschungshaus 4
Einfach Bauen
Forschungshaus 5
Bauen mit Holz
Holz 3
Bauen mit Holz
Holz 8
Bauen mit Holz
Holzparkdeck
Bauen mit Holz
Holzpavillon
Bauen mit Holz
WOGENO
Bestandsnutzung und Erweiterung
B&O Parkhotel (356, 358-362)
Bestandsnutzung und Erweiterung
Peissnhof
Bestandsnutzung und Erweiterung
Bestand (316)
Energieversorgung
Heizwerk
Energieversorgung
Heizikone
Bestandsnutzung und Erweiterung
Bestand (353)
Bauen mit Holz
Holz 2
Energieversorgung
Solar Decathlon
Bauen mit Holz
Dreispänner
Erweiterung und Nachverdichtung
Sternenbrücke
Erweiterung und Nachverdichtung
Deutsches Fußballinternat Parkplatzüberbauung
Erweiterung und Nachverdichtung
Saal Cambridge
Bauen mit Holz
Holzbau-Aula Dietrich-Bonhoeffer-Campus Bad Aibling
Dietrich-Bonhoeffer-Straße 28, Bad Aibling-Mietraching, Deutschland