Forschungshaus 3
3 Häuser zu Forschungszwecken in 3 Materialien: Ziegel, Massivholz und Dämmbeton. „Einfach bauen“: Reduktion der Haustechnik und Einsatz von Raumvolumen entsprechend idealer Klimabilanz. Messverfahren der Klimawerte nach Material, Nutzerverhalten und Verbrauch.
| Architektur | Florian Nagler Architekten, München |
| Bauherr | B&O Gruppe |
| Bauzeit | 2020 |
| Typologie | dreigeschossiges Ziegelhaus mit flach geneigtem Satteldach, monolithisch; 7 Wohnungen |
| Flächeneffizienz | 68 % |
| Bruttogrundfläche | 612,00 m² |
| Wohnfläche | 413,78 m² |
| Raumhöhe | 3,10 m |
| Brutto-Rauminhalt | 2.357 m³ |
Monolithischer Ziegelbau im Modellprojekt „Einfach Bauen“
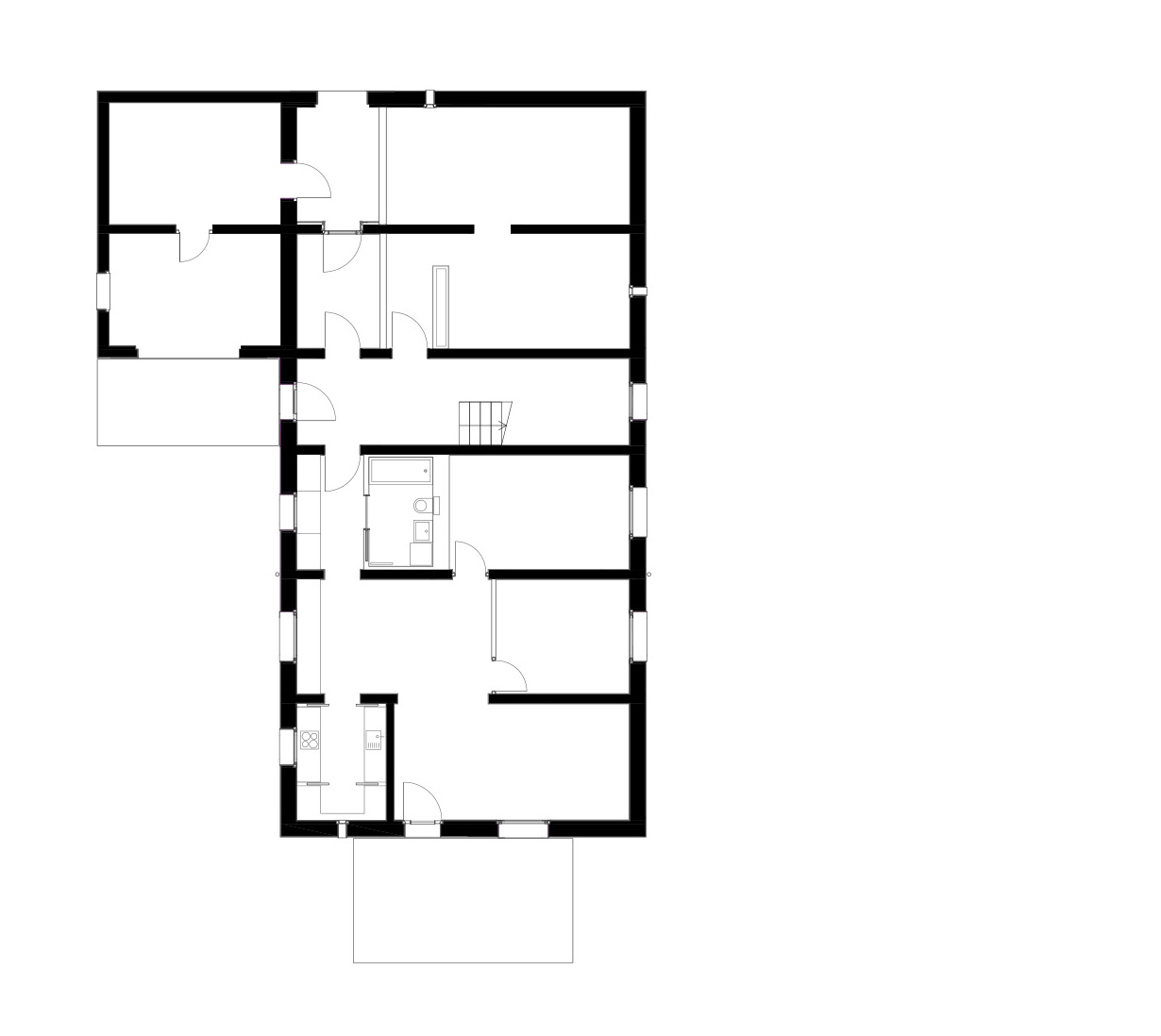
2020 entstand auf dem B&O Bau ForschungsQuartier in Bad Aibling das Forschungshaus 3, ein dreigeschossiges Wohngebäude in monolithischer Ziegelbauweise. Gemeinsam mit der TU München und Transsolar Energietechnik wurde es von Florian Nagler Architekten entwickelt, um die Leistungsfähigkeit traditioneller Mauerwerkskonstruktionen im Rahmen der Strategie „Einfach Bauen“ zu untersuchen.
Die Außenwände bestehen aus 42 cm starken Lochziegeln mit Kalkzementleichtputz, die Innenwände aus 24 cm starken Lochziegeln mit Kalkanstrich. Filigrandecken mit Aufbeton komplettieren die Schottenbaukonstruktion. Insgesamt bietet das Haus sieben Wohnungen mit einer Flächeneffizienz von 68 % und einer Raumhöhe von 3,10 m.
Zur Ausstattung gehören Linoleum- und Sisalbeläge, vorgefertigte Bäder aus Multiplexplatten sowie eine dezentrale Frischwasserversorgung. Die Energieversorgung erfolgt über Fensterlüftung, Heizkörper, einen Pufferspeicher und den Anschluss an das Nahwärmenetz. Der energetische Standard liegt zwischen KfW 70 und KfW 55.
Wie die beiden weiteren Forschungshäuser aus Holz und Dämmbeton liefert auch das Ziegelhaus seit 2021 Messdaten zu Raumklima, Nutzerverhalten und Energieverbrauch. So werden zentrale Erkenntnisse für die Weiterentwicklung der Bauweise gewonnen. Das Projekt wurde 2022 mit dem Deutschen Nachhaltigkeitspreis Architektur ausgezeichnet.
| Konstruktion | Monolithische Bauweise; Schottenbaukonstruktion (3,5 m Wandabstand) |
| Decke | Filigrandecken mit Aufbeton, d = 30 cm |
| Außenwand | Lochziegel, d = 42 cm; Kalkzementleichtputz |
| Innenwand | Lochziegel, d = 24 cm, Kalkanstrich |
| Ausstattung | WE: Linoleum; Sisal; Fertigbäder- Multiplexplatten; Wohnungszentrale Frischwasserversorgung |
| Energieversorgung/Energiekonzept | Fensterlüftung; Heizkörper; Anschluss an das Nahwärmenetz; Pufferspeicher; dezentrale Warmwassererzeugung |
| Energetischer Standard | KfW 70 – KfW 55 |
| Endenergiebedarf (kWh/(m²a)) | 72 |
| Primärenergiebedarf (kWh/(m²a)) | 31 |
| CO₂-Emission Betrieb (kg CO₂-Äq. /m²a) | 18,20 |
| GWP-Herstellung (kg CO₂-Äq.) | 109.625 |
| GWP-Lebenszyklus (kg CO₂-Äq.) | 198.156 |
Weitere Referenzen zu Einfach Bauen:
Bauen mit Holz
Holz 4
Bauen mit Holz
Bürogebäude
Bestandsnutzung und Erweiterung
DFI Gebäude (354)
Bauen mit Holz
Chalet
Einfach Bauen
Forschungshaus 1
Einfach Bauen
Forschungshaus 2
Einfach Bauen
Forschungshaus 3
Einfach Bauen
Forschungshaus 4
Bauen mit Holz
Holz 3
Bauen mit Holz
Holz 8
Bauen mit Holz
Holzparkdeck
Bauen mit Holz
Holzpavillon
Bauen mit Holz
WOGENO
Bestandsnutzung und Erweiterung
B&O Parkhotel (356, 358-362)
Bestandsnutzung und Erweiterung
Peissnhof
Bestandsnutzung und Erweiterung
Bestand (316)
Energieversorgung
Heizwerk
Energieversorgung
Heizikone
Bestandsnutzung und Erweiterung
Bestand (353)
Bauen mit Holz
Holz 2
Energieversorgung
Solar Decathlon
Bauen mit Holz
Dreispänner
Erweiterung und Nachverdichtung
Sternenbrücke
Erweiterung und Nachverdichtung
Deutsches Fußballinternat Parkplatzüberbauung
Erweiterung und Nachverdichtung
Saal Cambridge